Menu
  • 11 23860591
  • 11 9 84336683 WhatsApp

REF: 6913 – Galpões Vila Moreira – São Paulo – SP

Locação R$ 800.000,00

Comercial

  • Área terreno: 24.454,00 m²
  • Área fabril: 19000.00 m²
  • Área construída: 19929.00 m²
  • Área do escritorio: 500.00 m²
  • Pé direito: 12,00 m
  • Docas: 12
  • IPTU: R$ 135.723,00

Valores informados e disponibilidade do imóvel sujeitos a alterações sem prévio aviso.

Informações Adicionais

  • Finalidade: comercial

Descrição do Imóvel

Aluga se galpão enorme no Tatuapé

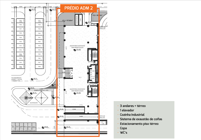
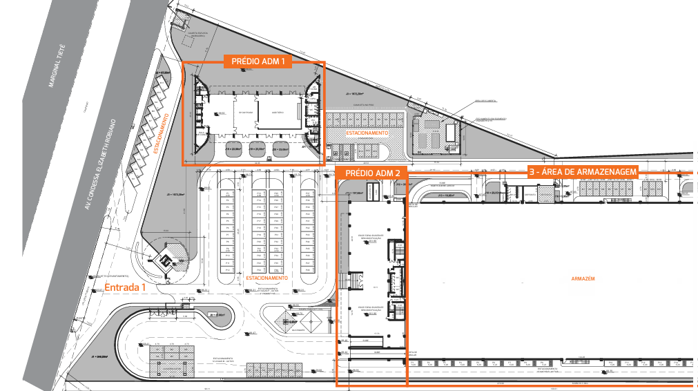
São 24.454 metros quadrados de terreno, e 19.929 metros quadrados de área construída, 2 prédios comerciais, com área de armazenagem integrada, capacidade do piso 7 toneladas, pé direito de 12 metros, 12 docas. 2 entradas.

Prédio 1 contém 5 andares, 3 elevadores, auditório.

prédio 2, 3 andares, coz indusrial, sistema de exaustão de coifas.

Valor R$ 800.000,00

IPTU R$ 135.723,00

Garantias de locações: Seguro fiança, depósito caução, fiador e capitalização

 Entre em contato conosco e agende a sua visita!!!

Código de referência do imóvel junto ao anunciante: 6913

Valor do IPTU pode sofrer alterações sem nosso conhecimento.

Acesso nosso site www.sassoimoveis.com.br nós temos o imóvel ideal para você!

Sasso Imóveis atendimento com qualidade e transparência! Creci 34125J

Aviso Legal: Este anúncio é baseado em informações que consideramos confiáveis, mas como foram fornecidas por terceiros, não podemos assegurar que seja preciso ou completo, e não deve ser considerado como tal. Esta oferta está sujeita a erros, omissões e alterações, incluindo preço ou retirada sem aviso prévio.

Obtenha Mais Informações

Todos os campos com * são de preenchimento obrigatório.

CAPTCHA

Ao clicar em "Enviar", autorizo o contato dos anunciantes, declaro que tenho mais de 18 anos e concordo com a política de privacidade.

Características do Imóvel

  • √ Aquecimento central
  • √ Armário de cozinha
  • √ Box de vidro
  • √ Copa
  • √ Corredor lateral
  • √ Cozinha americana
  • √ Dependência de Empregados
  • √ Despensa
  • √ Garagem descoberta
  • √ Lavabo
  • √ Mobiliado
  • √ Piso laminado
  • √ Sacada
  • √ Sala de Almoço
  • √ Sala de Jantar
  • √ Sala Intima
  • √ Varanda
  • √ WC para empregados

Mapa de Localização

Veja também

Este site usa cookies para melhorar sua experiência. Ao continuar navegando você concorda com nossos Termos de Uso e Política de Privacidade.

Nosso Endereço

R. Pimenta Bueno, 333 - Belém
São Paulo - SP, CEP: 03060-000
Solicitações e 2ª via de boleto:
E-mail: imoveissasso@gmail.com
WhatsApp (11) 99452-5451

Trabalhamos com assinatura digital.

Redes sociais